Berlin /  Berlin /  smartvillage Berlin Exklusiv

smartvillage Berlin Exklusiv

Neukölln

1250 Personen

3800 m²

32.999€ /Tag zzgl. MwSt.

19.799€ /Tag zzgl. MwSt. | off season*

  • Blick durch den offenen Eingangsbereich auf das Café mit goldener Theke, Barhockern in Pink und Orange, Pflanzen und farbiger Deckendekoration.
    Eingangsbereich smartvillage Berlin
  • Nahaufnahme einer großen Diskokugel mit zwei bunt lackierten Schaufensterpuppen und einer Maxi-Single-Schallplatte von Donna Summer („Hot Stuff“).
    Disco Stage - smartvillage Berlin
  • Moderner Besprechungsraum mit einem großen Tisch, umgeben von Stühlen auf einem bunten Teppich und einer großen Wanddekoration eines roten Mundes mit herausgestreckter Zunge
    Rock Stage - smartvillage Berlin
  • Moderne Dachterrasse mit hölzernem Pergola, eingebettet in üppige Pflanzen, mit Blick auf umliegende Gebäude.
    Dachgarten - smartvillage Berlin
  • Moderner Bürobereich in einem gläsernen Gewächshaus mit grünen Wänden, Stühlen, Pflanzen und flexiblem Arbeitsbereich.
    Sonnendeck - smartvillage Berlin
  • Moderne Veranstaltungshalle mit Reihen von schwarzen Stühlen, einer beleuchteten Bar im Hintergrund und dekorativen Elementen
    Music Hall - smartvillage Berlin
  • Moderne Halle mit Glasdach, beleuchtet durch zahlreiche hängende Glühbirnen, umgeben von üppigen grünen Pflanzen und einer Galerieebene aus Holz.
    Wintergarten - smartvillage Berlin
  • Blick auf die Elektro Stage mit mehreren Gruppentischen, umgeben von hellen Stühlen.
    Elektro Stage - smartvillage Berlin
  • Blick durch die Crossover Stage im Smartvillage B-NK mit bunter Teppichgestaltung und Stuhlreihen
    Crossover Stage - smartvillage Berlin
  • Catering-Bereich vor der Crossover Stage, Blick auf Stehtische und Glasfassade
    Crossover Stage - smartvillage Berlin
  • Seminarraum mit Fokus auf die ersten Stuhlreihen, weiß und braun, Hintergrund zeigt eine Wand mit Kunstmotiv und ein goldenes Bettgestell.
    Backstage - smartvillage Berlin
  • Blick in einen großen Konferenzraum mit Reihenbestuhlung aus beigen und weißen Stühlen auf grün-blau gemustertem Teppichboden.
    Main Stage - smartvillage Berlin
  • Blick in den Raum mit Fokus auf Eingang und gegenüberliegende Wand.
    Seebühne - smartvillage Berlin
  • Blick von einem Tisch mit Blumen im Vordergrund auf Bar, Flur und Cafébereich.
    Smart Café - smartvillage Berlin
  • Detailansicht der langen Sitzbank mit mintfarbenen Kissen, runden Wandinstallationen und hängenden Glaskugelleuchten in einem hellen Cafébereich.
    Smart Café Sitzecke - smartvillage Berlin
  • Lounge-Bereich mit roten und blauen Sofas, Teppich, Pflanzen und einem blauen Netzdach unter hoher Glasfassade.
    Networking Area - smartvillage Berlin
  • Eingangsbereich mit einem dekorierten Buddy Bären, Festival-Wegweiser an der Wand und einer Holzbox.
    Networking Area - smartvillage Berlin
  • Empfangstresen mit großem „WELCOME“-Schriftzug und bunter Stoffdeko an der Decke.
    Rezeption/Registration Desk - smartvillage Berlin
  • Modern eingerichtete Lounge mit hohen Barstühlen an einem schwarzen Tisch, grünen Sitzsäcken und großen Topfpflanzen vor einer Glasfront mit Blick auf einen Poolbereich
    Networking Area - smartvillage Berlin
  • Gemütliche Sitzecke mit rotem Sofa, grünen Sesseln, bunten Kissen und dekorativem Teppich.
    Networking Area - smartvillage Berlin
  • Breiter Flur mit Sitzgruppen, Pflanzen, farbenfroher Deckendeko und einem Empfangstresen auf der rechten Seite.
    Welcome to your festival Eingangsbereich - smartvillage Berlin
  • Weiße Pendelleuchten hängen unter einer farbenfrohen Deckeninstallation aus bunten Papierstreifen.
    Design Highlight über der Rezeption - smartvillage Berlin
  • Getränkestation mit Kühlschränken von Fritz-Kola, Kaffeemaschinen, bunten Tischen mit Blumen und hängenden Lampen vor grün gefliester Wand.
    Wunder Bar - smartvillage Berlin
  • Weitwinkelaufnahme eines farbenfrohen Lounge- und Barbereichs mit großen Pflanzen, Theke mit Getränken, Sitzgelegenheiten und modernen Deckenleuchten.
    Wunder Bar und Networking Area - smartvillage Berlin
  • Weitläufige Ansicht eines kreativ gestalteten Loungebereichs mit Glaskabine, bunten Schirmen, Sofas und Pflanzen sowie einem Blick auf die offene Architektur.
    Telefonbox und Networking Area - smartvillage Berlin
  • Glaskabine mit Diskokugel und kleinem Tisch mit vier Stühlen, umgeben von bunten Sonnenschirmen, Sesseln und Pflanzen im Lounge-Stil.
    Telefonbox und kleinste Disco der Welt - smartvillage Berlin
  • Kleiner, gemütlicher Sitzbereich mit Sesseln unter einem orangefarbenen Sonnenschirm, Blick durch Glaswände auf ein Raum mit Feuerwerksmotiv an der Wand.
    Networking Area - smartvillage Berlin
  • Wandgestaltung mit Vintage-Bahnhofsschild „ZU DEN ZÜGEN / ZU DEN TOILETTEN“, daneben Kühlschrank, Pflanzen und Polaroid-Fotowand.
    Stilvolle Eyecatcher Komponente - smartvillage Berlin
  • Vintage-Leuchtschild mit der Aufschrift „KIOSK“ und Hirschner Pilsener Logos, montiert an einer Wand mit grünen Keramikfliesen.
    Original Kiosk Schild - smartvillage Berlin
  • Kicker-Tisch mit der Aufschrift „FLUTLICHT“ vor gelbem Vorhang und Retro-Leuchtschild „NOTAUFNAHME“ an der Wand.
    Playful Area: Kicker - smartvillage Berlin
  • Haupteingang des modernen Gebäudes KALLE, mit offener Architektur, großzügigen Glasfronten und urbanem Platz für Besucher
    smartvillage Haupteingang KALLE Berlin
  • Architektonische Visualisierung eines modernen Gebäudekomplexes in einer Stadt bei Nacht, mit beleuchteten Terrassen, begrünten Fassaden und einem offenen Dachbereich, umgeben von historischen Gebäuden und einer belebten Straße mit Lichtspuren vorbeifahrender Autos
    KALLE Vogelperspektive - smartvillage
  • Stilvolles Rooftop-Restaurant 'KALLE Grill' mit verglasten Pavillons und urbanem Garten, beleuchtet in der Abenddämmerung. Gäste genießen die Atmosphäre mit Blick auf die Skyline der Stadt, während das moderne Design mit grünen Elementen harmoniert
    Dachterrasse aus Vogelperspektive - smartvillage Berlin
  • Blick durch den offenen Eingangsbereich auf das Café mit goldener Theke, Barhockern in Pink und Orange, Pflanzen und farbiger Deckendekoration.
  • Nahaufnahme einer großen Diskokugel mit zwei bunt lackierten Schaufensterpuppen und einer Maxi-Single-Schallplatte von Donna Summer („Hot Stuff“).
  • Moderner Besprechungsraum mit einem großen Tisch, umgeben von Stühlen auf einem bunten Teppich und einer großen Wanddekoration eines roten Mundes mit herausgestreckter Zunge
  • Moderne Dachterrasse mit hölzernem Pergola, eingebettet in üppige Pflanzen, mit Blick auf umliegende Gebäude.
  • Moderner Bürobereich in einem gläsernen Gewächshaus mit grünen Wänden, Stühlen, Pflanzen und flexiblem Arbeitsbereich.
  • Moderne Veranstaltungshalle mit Reihen von schwarzen Stühlen, einer beleuchteten Bar im Hintergrund und dekorativen Elementen
  • Moderne Halle mit Glasdach, beleuchtet durch zahlreiche hängende Glühbirnen, umgeben von üppigen grünen Pflanzen und einer Galerieebene aus Holz.
  • Blick auf die Elektro Stage mit mehreren Gruppentischen, umgeben von hellen Stühlen.
  • Blick durch die Crossover Stage im Smartvillage B-NK mit bunter Teppichgestaltung und Stuhlreihen
  • Catering-Bereich vor der Crossover Stage, Blick auf Stehtische und Glasfassade
  • Seminarraum mit Fokus auf die ersten Stuhlreihen, weiß und braun, Hintergrund zeigt eine Wand mit Kunstmotiv und ein goldenes Bettgestell.
  • Blick in einen großen Konferenzraum mit Reihenbestuhlung aus beigen und weißen Stühlen auf grün-blau gemustertem Teppichboden.
  • Blick in den Raum mit Fokus auf Eingang und gegenüberliegende Wand.
  • Blick von einem Tisch mit Blumen im Vordergrund auf Bar, Flur und Cafébereich.
  • Detailansicht der langen Sitzbank mit mintfarbenen Kissen, runden Wandinstallationen und hängenden Glaskugelleuchten in einem hellen Cafébereich.
  • Lounge-Bereich mit roten und blauen Sofas, Teppich, Pflanzen und einem blauen Netzdach unter hoher Glasfassade.
  • Eingangsbereich mit einem dekorierten Buddy Bären, Festival-Wegweiser an der Wand und einer Holzbox.
  • Empfangstresen mit großem „WELCOME“-Schriftzug und bunter Stoffdeko an der Decke.
  • Modern eingerichtete Lounge mit hohen Barstühlen an einem schwarzen Tisch, grünen Sitzsäcken und großen Topfpflanzen vor einer Glasfront mit Blick auf einen Poolbereich
  • Gemütliche Sitzecke mit rotem Sofa, grünen Sesseln, bunten Kissen und dekorativem Teppich.
  • Breiter Flur mit Sitzgruppen, Pflanzen, farbenfroher Deckendeko und einem Empfangstresen auf der rechten Seite.
  • Weiße Pendelleuchten hängen unter einer farbenfrohen Deckeninstallation aus bunten Papierstreifen.
  • Getränkestation mit Kühlschränken von Fritz-Kola, Kaffeemaschinen, bunten Tischen mit Blumen und hängenden Lampen vor grün gefliester Wand.
  • Weitwinkelaufnahme eines farbenfrohen Lounge- und Barbereichs mit großen Pflanzen, Theke mit Getränken, Sitzgelegenheiten und modernen Deckenleuchten.
  • Weitläufige Ansicht eines kreativ gestalteten Loungebereichs mit Glaskabine, bunten Schirmen, Sofas und Pflanzen sowie einem Blick auf die offene Architektur.
  • Glaskabine mit Diskokugel und kleinem Tisch mit vier Stühlen, umgeben von bunten Sonnenschirmen, Sesseln und Pflanzen im Lounge-Stil.
  • Kleiner, gemütlicher Sitzbereich mit Sesseln unter einem orangefarbenen Sonnenschirm, Blick durch Glaswände auf ein Raum mit Feuerwerksmotiv an der Wand.
  • Wandgestaltung mit Vintage-Bahnhofsschild „ZU DEN ZÜGEN / ZU DEN TOILETTEN“, daneben Kühlschrank, Pflanzen und Polaroid-Fotowand.
  • Vintage-Leuchtschild mit der Aufschrift „KIOSK“ und Hirschner Pilsener Logos, montiert an einer Wand mit grünen Keramikfliesen.
  • Kicker-Tisch mit der Aufschrift „FLUTLICHT“ vor gelbem Vorhang und Retro-Leuchtschild „NOTAUFNAHME“ an der Wand.
  • Haupteingang des modernen Gebäudes KALLE, mit offener Architektur, großzügigen Glasfronten und urbanem Platz für Besucher
  • Architektonische Visualisierung eines modernen Gebäudekomplexes in einer Stadt bei Nacht, mit beleuchteten Terrassen, begrünten Fassaden und einem offenen Dachbereich, umgeben von historischen Gebäuden und einer belebten Straße mit Lichtspuren vorbeifahrender Autos
  • Stilvolles Rooftop-Restaurant 'KALLE Grill' mit verglasten Pavillons und urbanem Garten, beleuchtet in der Abenddämmerung. Gäste genießen die Atmosphäre mit Blick auf die Skyline der Stadt, während das moderne Design mit grünen Elementen harmoniert

smartvillage Berlin Exklusiv

Berlin

1250 Personen

3800 m²

32.999€ /Tag zzgl. MwSt.

19.799€ /Tag zzgl. MwSt. | off season*

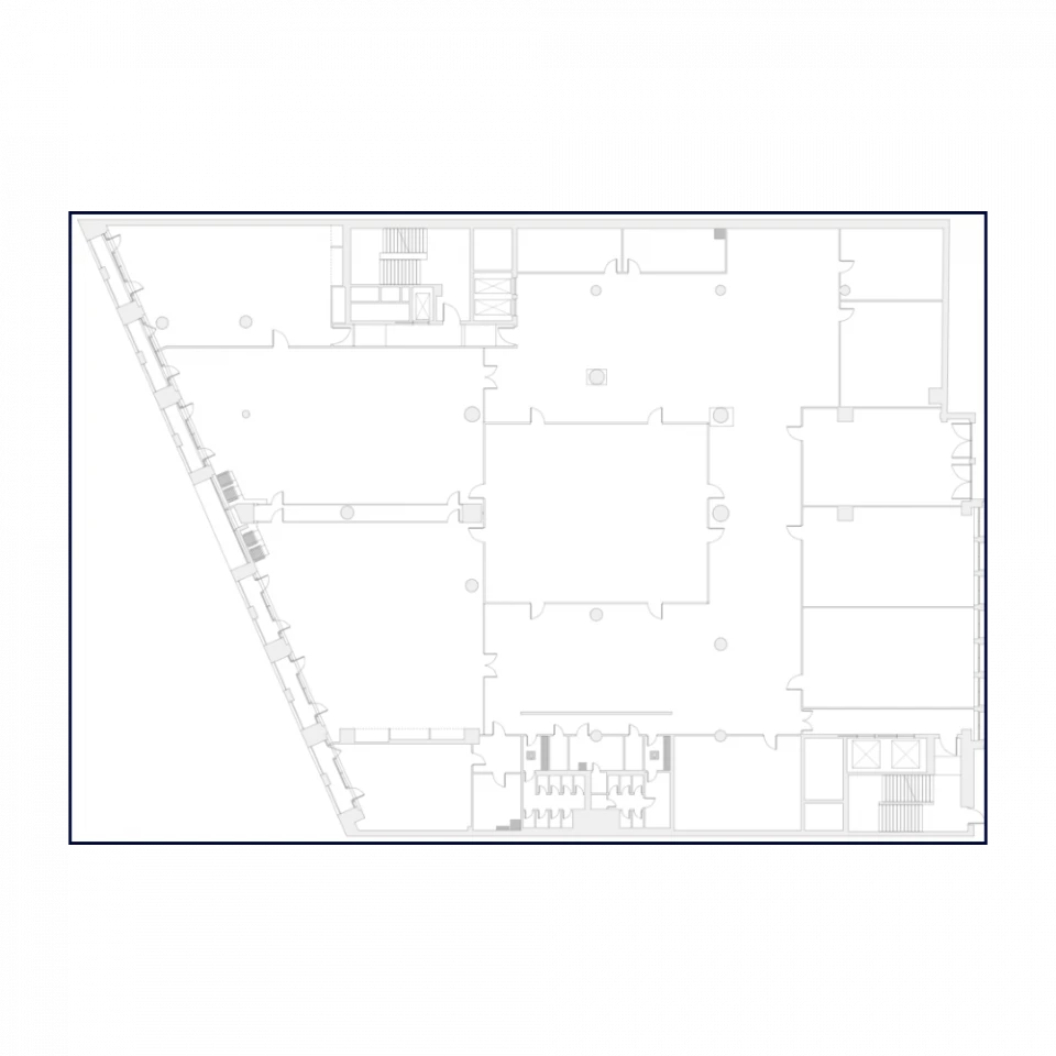
Das ganze Festival nur für Euch. 🎉 Ein Workshop ist gut. Eine Konferenz auch. Aber was, wenn Du das volle Programm haben könntest? Das komplette smartvillage Berlin. Alle Bühnen. Alle Räume. Alle Möglichkeiten. 3.800 m² Raum für Ideen und Kapazitäten für bis zu 500 Personen. Ein ganzes "Festivalgelände" für Deine Vision. Von intensiven Workshops auf der Rock Stage bis zum ganz großen Auftritt auf der Main Stage, über Sundowner-Session auf dem Sonnendeck. Und wenn es krachen soll? Dann rein in die Eventhalle: Music Hall plus Wintergarten ergeben 880 m² für Produktshows, Konzerte, Partys und alles, was nach Bühne schreit. Zwischen den Sessions trefft ihr Euch an der Helga’s Bar im Smart Café, luncht im Grünen und netzwerkt über den Dächern Berlins im Dachgarten. Jedes Event wird hier zu Deinem persönlichen Festival. Dazu High-End-Technik und unser einzigartiges smartvillage-Feeling. Exklusiv für Dich und Deine Teilnehmer:innen!

*off season: Bis zu 40 % Rabatt für Neukunden dieser Location an Fr, Sa, So, Mo oder in den lokalen Ferienzeiten. Nicht kombinierbar mit anderen Rabatten.
Empfohlen für
  • Konferenzen
  • Tagungen
  • Meetings
  • Workshops
  • Teamevents
  • Firmenfeiern
  • Kongresse
  • Messen

Interessiert an diesem Raum? Let’s talk!

Finde hier die perfekte Kulisse für Deine ambitionierten Projekte und schaffe ein einzigartiges Erlebnis. Lass uns gemeinsam den Grundstein für etwas Außergewöhnliches legen!

Services & Ausstattung

Alles, was Du brauchst – inklusive!

Mach es Dir einfach mit unserer Top-Ausstattung. Ob Technik, Design oder Komfort – wir haben an alles gedacht, damit Du Dich voll und ganz auf Dein Projekt konzentrieren kannst.

  • Freies Highspeed WLAN
  • Volle Klimatisierung
  • Zugang zu den Community-Areas
  • Individuelle Möblierung und Deko
  • Herzlicher Empfang unserer Gäste
  • Persönliches Onboarding
  • Support in unter 1 Minute
  • Flexible Raumgestaltung
  • Tageslicht mit Verdunklungsoption
  • Gute Ausleuchtung

Interessiert an diesem Raum? Let’s talk!

Finde hier die perfekte Kulisse für Deine ambitionierten Projekte und schaffe ein einzigartiges Erlebnis. Lass uns gemeinsam den Grundstein für etwas Außergewöhnliches legen!

So flexibel wie Du es bist: Unsere smarten Services

Alle Services

Dein Event. Unendlich viele Catering-Möglichkeiten. 3 Beispiele:

Abbildung einer Frau, die auf einem Hocker lehnt und eine Filmkamera bedient.

Catering Beispiel "small"

Dieses Paket ist ideal für kleinere Veranstaltungen. Es bietet Dir alle Grundlagen, die Du für eine erfolgreiches Event benötigst.

46€ p.P.*

  • Getränke flat ganztags

  • Easy Lunch

  • Kuchen am Nachmittag

*Die angegebenen Beispielpreise beziehen sich ausschliesslich auf Essen und Getränke ohne Raumkosten, zzgl. MwSt.

Drei Personen, die gemeinsam in einer Küche arbeiten: Eine rührt in einem großen Topf, eine hält ein Rezeptbuch und diskutiert mit der dritten Person.

Catering Beispiel "medium"

Auch die Pausen sind ein wichtiger Teil jeder Veranstaltung – wir sorgen dafür, dass sie unvergesslich werden.

64€ p.P.*

  • Getränke flat ganztags

  • Frühstück

  • Feelgood Lunch

  • Kuchen am Nachmittag

*Die angegebenen Beispielpreise beziehen sich ausschliesslich auf Essen und Getränke ohne Raumkosten, zzgl. MwSt.

Schlichte schwarz-weiße Illustration einer Person in einer meditierenden Pose mit erhobenen Händen, umgeben von Sternen

Catering Beispiel "large"

Ideal für diejenigen, die ihre Veranstaltung in vollen Zügen genießen möchten, während wir uns um alle Details kümmern.

116€ p.P.*

  • Getränke flat ganztags

  • Frühstück

  • Feelgood Lunch

  • Kuchen am Nachmittag

  • Premium Fingerfood am Abend

  • Aperitif

*Die angegebenen Beispielpreise beziehen sich ausschliesslich auf Essen und Getränke ohne Raumkosten, zzgl. MwSt.

  • Abbildung einer Frau, die auf einem Hocker lehnt und eine Filmkamera bedient.

    Catering Beispiel "small"

    Dieses Paket ist ideal für kleinere Veranstaltungen. Es bietet Dir alle Grundlagen, die Du für eine erfolgreiches Event benötigst.

    46€ p.P.*

    • Getränke flat ganztags

    • Easy Lunch

    • Kuchen am Nachmittag

    *Die angegebenen Beispielpreise beziehen sich ausschliesslich auf Essen und Getränke ohne Raumkosten, zzgl. MwSt.
  • Drei Personen, die gemeinsam in einer Küche arbeiten: Eine rührt in einem großen Topf, eine hält ein Rezeptbuch und diskutiert mit der dritten Person.

    Catering Beispiel "medium"

    Auch die Pausen sind ein wichtiger Teil jeder Veranstaltung – wir sorgen dafür, dass sie unvergesslich werden.

    64€ p.P.*

    • Getränke flat ganztags

    • Frühstück

    • Feelgood Lunch

    • Kuchen am Nachmittag

    *Die angegebenen Beispielpreise beziehen sich ausschliesslich auf Essen und Getränke ohne Raumkosten, zzgl. MwSt.
  • Schlichte schwarz-weiße Illustration einer Person in einer meditierenden Pose mit erhobenen Händen, umgeben von Sternen

    Catering Beispiel "large"

    Ideal für diejenigen, die ihre Veranstaltung in vollen Zügen genießen möchten, während wir uns um alle Details kümmern.

    116€ p.P.*

    • Getränke flat ganztags

    • Frühstück

    • Feelgood Lunch

    • Kuchen am Nachmittag

    • Premium Fingerfood am Abend

    • Aperitif

    *Die angegebenen Beispielpreise beziehen sich ausschliesslich auf Essen und Getränke ohne Raumkosten, zzgl. MwSt.
Kundenstimmen

Die erste Wahl für Top-Teams

Blau auf weißem Hintergrund stilisiertes Logo, das die Buchstaben 'IAV' in einem fließenden, wellenartigen Design darstellt.

"Sehr besondere Location, die durch die kreative Ausstattung und die Wohlfühlatmosphäre für unsere interaktive Konferenz und Gruppensessions mit 330 Personen genau richtig war. Besonders in Erinnerung geblieben sind uns die sehr engagierten und freundlichen Mitarbeiter:innen."

Sonja von Tresckow Team Lead Corporate Events, IAV
Logo von Checkmk mit einem stilisierten weißen Haus-Symbol in einem Sechseck und dem Schriftzug 'checkmk' auf grünem Hintergrund.

"Das smartvillage Bogenhausen bietet die perfekte Mischung aus Professionalität und Wohlfühlatmosphäre. Die Location ist inspirierend, und das Team stets bereit, unsere Ideen flexibel und effizient umzusetzen. Wir und unsere Kunden fühlen uns hier bestens betreut."

Melina Weide Team Lead Field Marketing & Brand Manager CheckMK
Grafik mit der Aufschrift 'Lettering Days 2024' in geschwungener, weißer Schrift auf gelbem Hintergrund

"Die Locations vom smartvillage sind einfach klasse, warme, und dennoch moderne Atmosphäre und der Umgang und die Zusammenarbeit mit dem smartvillage Team ist immer sehr angenehm und reibungslos".

Robert Bree Team Lettering Days
  • Blau auf weißem Hintergrund stilisiertes Logo, das die Buchstaben 'IAV' in einem fließenden, wellenartigen Design darstellt.

    "Sehr besondere Location, die durch die kreative Ausstattung und die Wohlfühlatmosphäre für unsere interaktive Konferenz und Gruppensessions mit 330 Personen genau richtig war. Besonders in Erinnerung geblieben sind uns die sehr engagierten und freundlichen Mitarbeiter:innen."

    Sonja von Tresckow Team Lead Corporate Events, IAV
  • Logo von Checkmk mit einem stilisierten weißen Haus-Symbol in einem Sechseck und dem Schriftzug 'checkmk' auf grünem Hintergrund.

    "Das smartvillage Bogenhausen bietet die perfekte Mischung aus Professionalität und Wohlfühlatmosphäre. Die Location ist inspirierend, und das Team stets bereit, unsere Ideen flexibel und effizient umzusetzen. Wir und unsere Kunden fühlen uns hier bestens betreut."

    Melina Weide Team Lead Field Marketing & Brand Manager CheckMK
  • Grafik mit der Aufschrift 'Lettering Days 2024' in geschwungener, weißer Schrift auf gelbem Hintergrund

    "Die Locations vom smartvillage sind einfach klasse, warme, und dennoch moderne Atmosphäre und der Umgang und die Zusammenarbeit mit dem smartvillage Team ist immer sehr angenehm und reibungslos".

    Robert Bree Team Lettering Days

Bereit Großes zu starten? Wir sind es. Let’s talk!

Lass uns Deine Ideen verwirklichen! Unsere Experten sind bereit, mit Dir durchzustarten. Kontaktiere uns und wir machen's möglich. Auf geht’s!

Lebendige Bar mit Menschen, die Getränke genießen, Barkeeper bei der Arbeit, beleuchtet durch bunte Lichter und eine große Diskokugel
Exklusivbuchung

Grenzenloser Raum für grenzenlose Ideen – Die gesamte Location für Euch!

Stellt Euch vor, Ihr tretet ein in eine Welt, die Euren Visionen folgt: Wo jedes Detail auf Euch zugeschnitten ist und die gesamte Location Euch gehört. Ein Tag, an dem Eure Wünsche im Mittelpunkt stehen und wir im Hintergrund dafür sorgen, dass alles reibungslos verläuft. Gemeinsam machen wir aus Eurem Event eine unvergessliche Erinnerung, die zum Erzählen einlädt.

Mehr erfahren

Du hast Fragen? Wir haben die Antworten!

Du findest nicht, wonach Du suchst? Hier findest Du Antworten auf häufig gestellte Fragen.

Alle Fragen

  • Ja, teile unserem Customer Success Team Deine Wünsche mit, und wir passen die Bestuhlung gerne Deinen Bedürfnissen an. Bitte bedenke, dass verschiedene Bestuhlungsarten unterschiedliche maximal Kapazitäten in den Räumen bedeuten. Im Rahmen dieser Einschränkungen sind wir sehr flexibel.  

  • Wir bieten eine große Bandbreite an technischer Ausstattung, darunter Beamer, Mikrofone, Lautsprecher Boxen, Leinwände und vieles mehr. Die genaue Auflistung findest Du auf unserer Equipment-Seite. Wir möchten sicherstellen, dass Deine Veranstaltung technisch bestens ausgestattet ist und alle Deine Anforderungen erfüllt werden.

  • Eine Bühne kannst Du über unsere Technikfirma in jeder Location buchen. Wir sind flexibel und möchten sicherstellen, dass Dein Event perfekt ausgestattet ist.